Architect

Nuppu

Year:
07/2021
Location:
Bratislava, SK
Authors:
Oliver Hacaj, Marek Malček

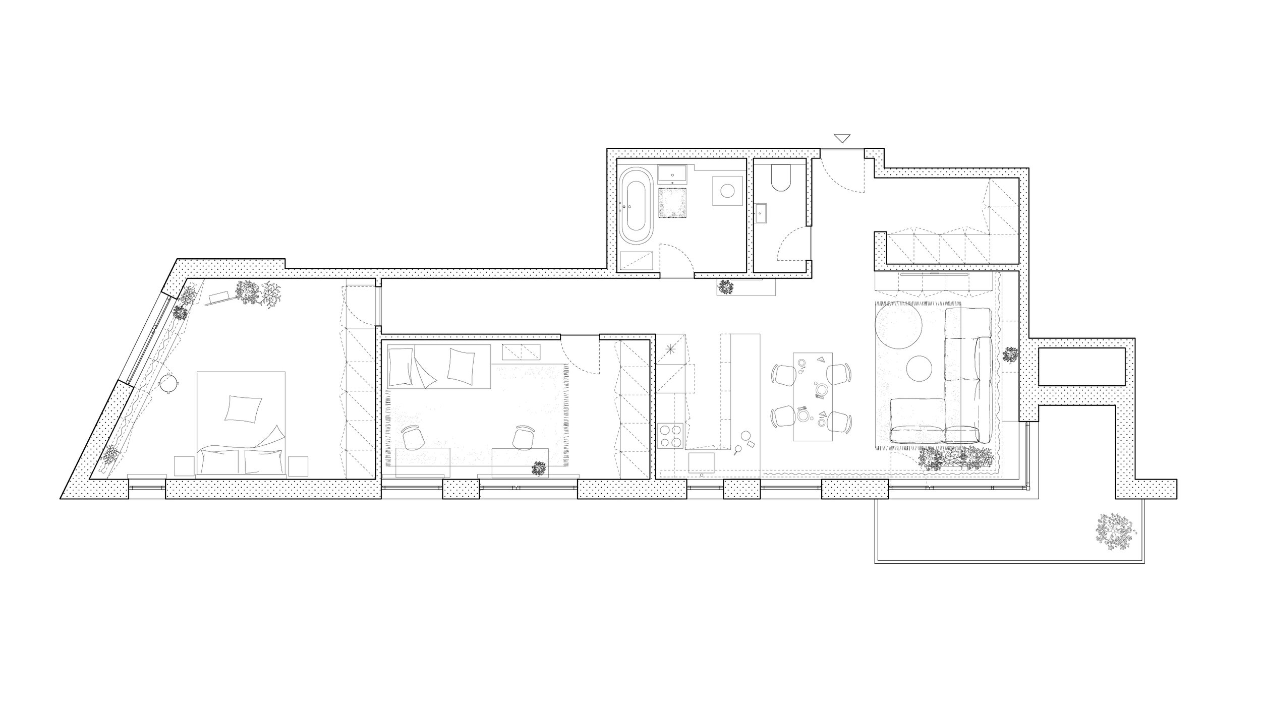
Kamošom, mladému páru sme dokončili štúdiu interiéru v bytovom komplexe Nuppu.

Napriek tomu, že sme nemohli dispozične velmi zasahovať, vznikol v dennej časti komfortný priestor na oddych, varenie a spoločné stretávanie sa s kamošmi a rodinou.

Jednoduchá kombinácia metalických materiálov, drobných kamenných prvkov a neutrálnej farebnosti necháva v budúcnosti priestor na osobité dotvorenie interiéru majitelmi.

Nočná časť je doplnená len praktickým vstavaným nábytkom a veľkým zrkadlom na IG posty.