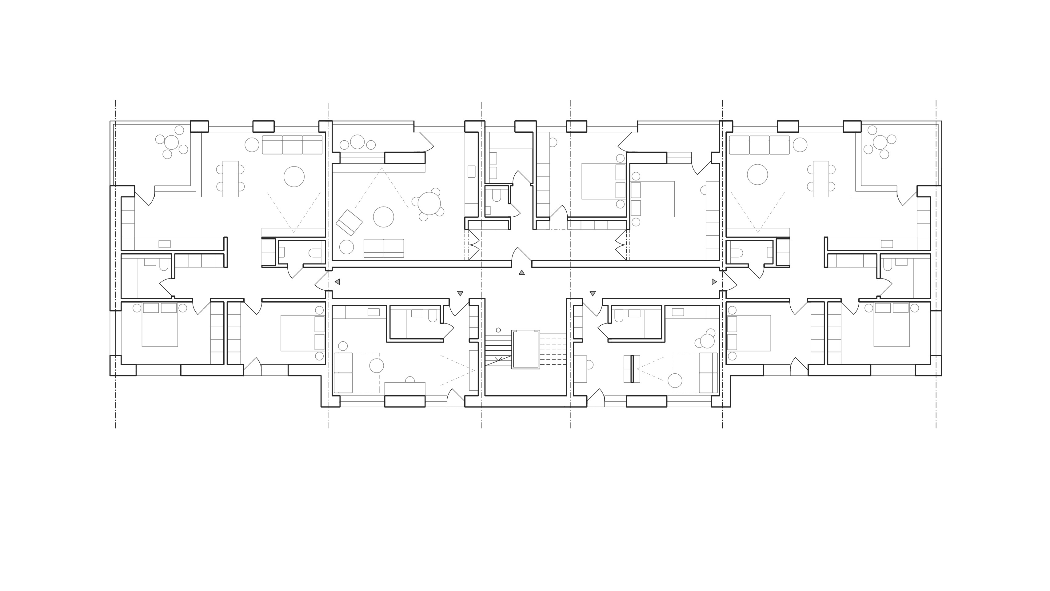
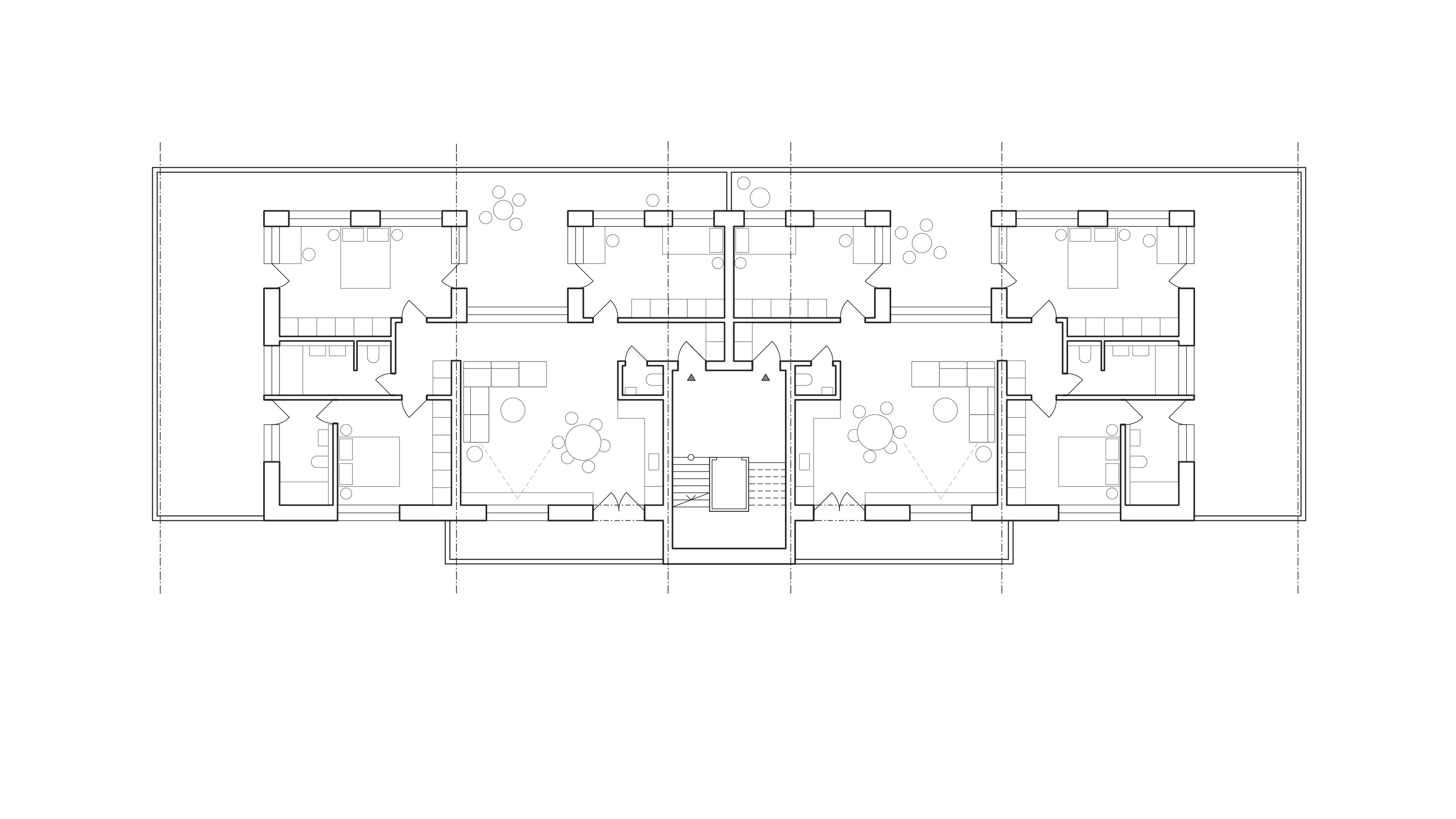
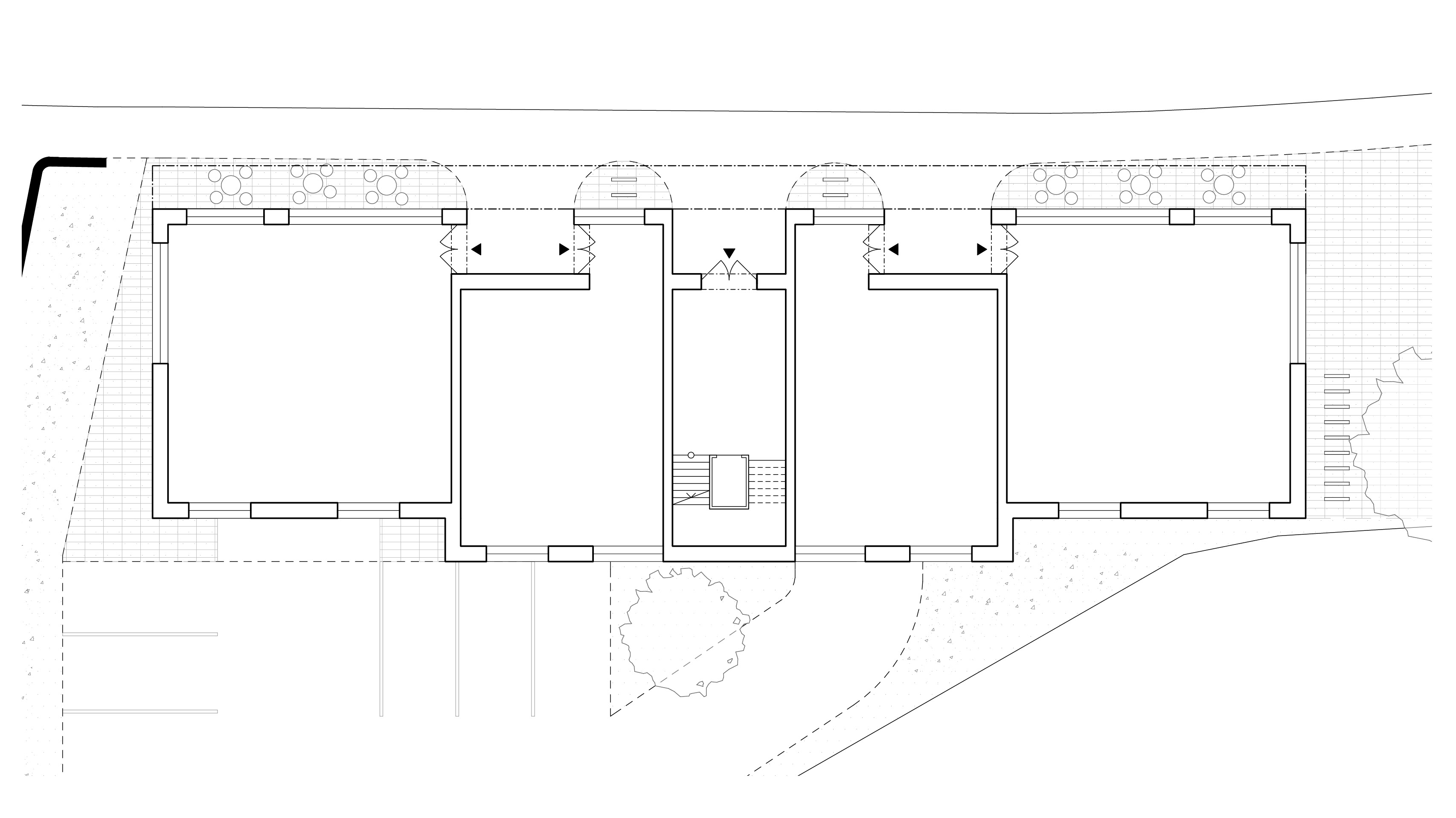
Previous Next 1/9 Maximize Kysuce I. Year: 01/2024 Location: Krásno nad Kysucou Authors: Oliver Hacaj, Marek Malček