Architect

Knižnica Galanta

Year:
06/2023
Location:
Galanta, SK
Authors:
Oliver Hacaj, Marek Malček, Samuel Moravčík
Collaboration:
ENDORFINE

Prepojenie dvoch parkov, formálneho mestského a menej formálneho parku SNP sme v našom návrhu od počiatku považovali za prioritu. Na Školskej ulici regulujeme dopravu a vytvárame nový verejný predpriestor knižnice - malú piazettu, ktorá spája hlavný vstup a park SNP. V rámci lokálneho mikrourbanizmu považujeme za hlavnú ideu pôdorysnú a hmotovú analógiu budovy knižnice, a priľahlých stavieb na parcele s Esterházyho kaštieľom.

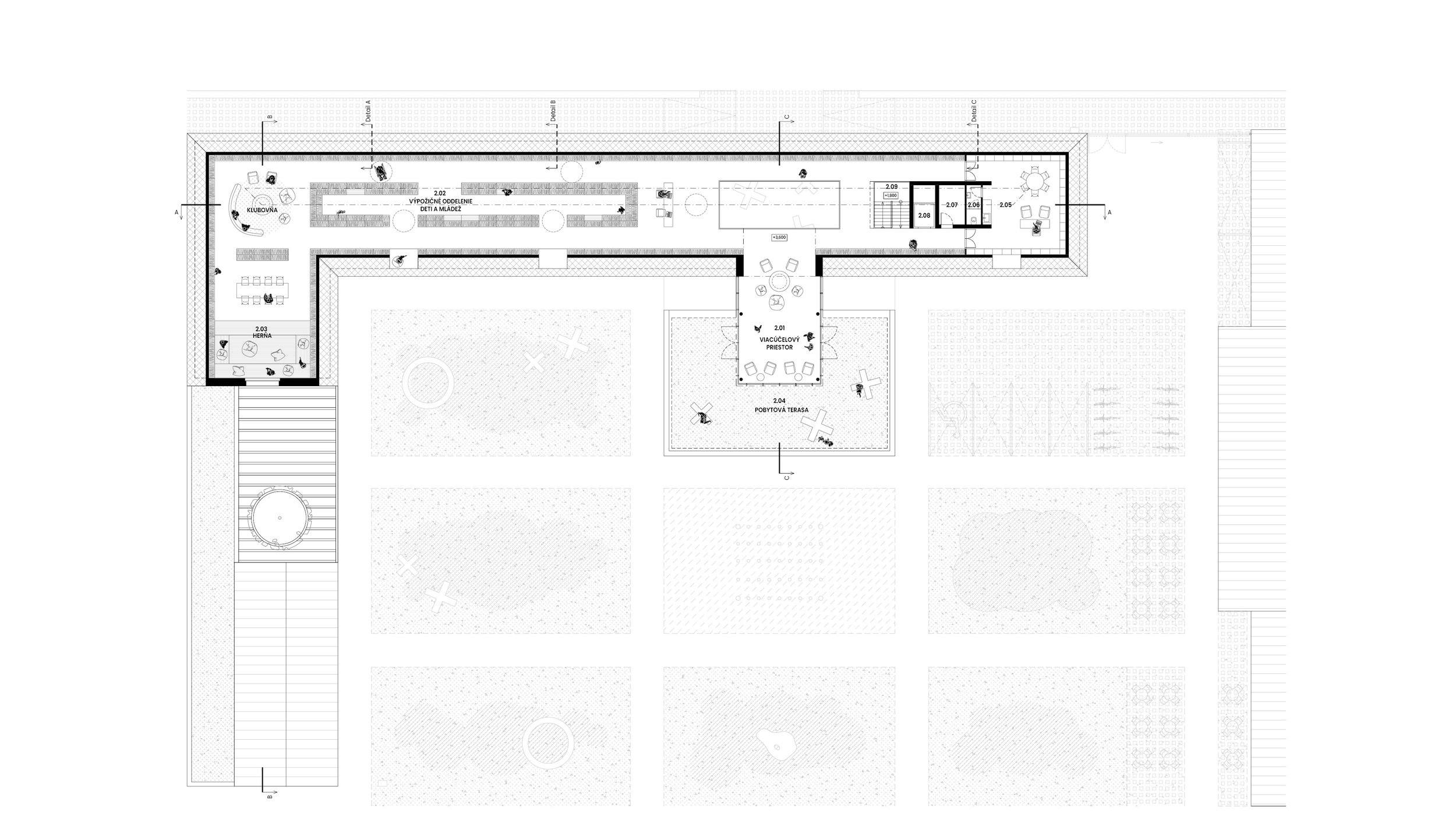
Samotný koncept je založený na maximálnom zachovaní pôvodnej vonkajšej konštrukcie a materiality jestvujúceho objektu. Interiér je očistený od vnútorných priečok a do stredu dispozície sú symetricky vložené betónové jadrá so zázemím, medzi ktorými sa nachádza vstupný vestibul otvorený cez dve podlažia.

Rušná časť knižnice plynule prechádza do kaviarne a viacúčelovej prístavby, ktorá je riešená vo forme reinterpretácie rizalitu neogotického kaštieľa.

Pôvodne členené otvory rozširujeme smerom k podlahe, presvetľujeme interiér a prepájame ho s exteriérom – vizuálne knižnicu otvárame. Spolu s navrhovanými, osovo umiestnenými otvormi na juhozápadnej strane objektu vznikajú dlhé priehľady medzi parkami. Medzi blokmi okien navrhujeme v pravidelnom rytme dvere – terciálne vstupy, ktorými je možné prirodzene “vyliať“ program a aktivity modernej knižnice do exteriéru.