Architect

Hasičská Zbrojnica

Year:
04/2019-2021
Location:
Bíňovce, SK

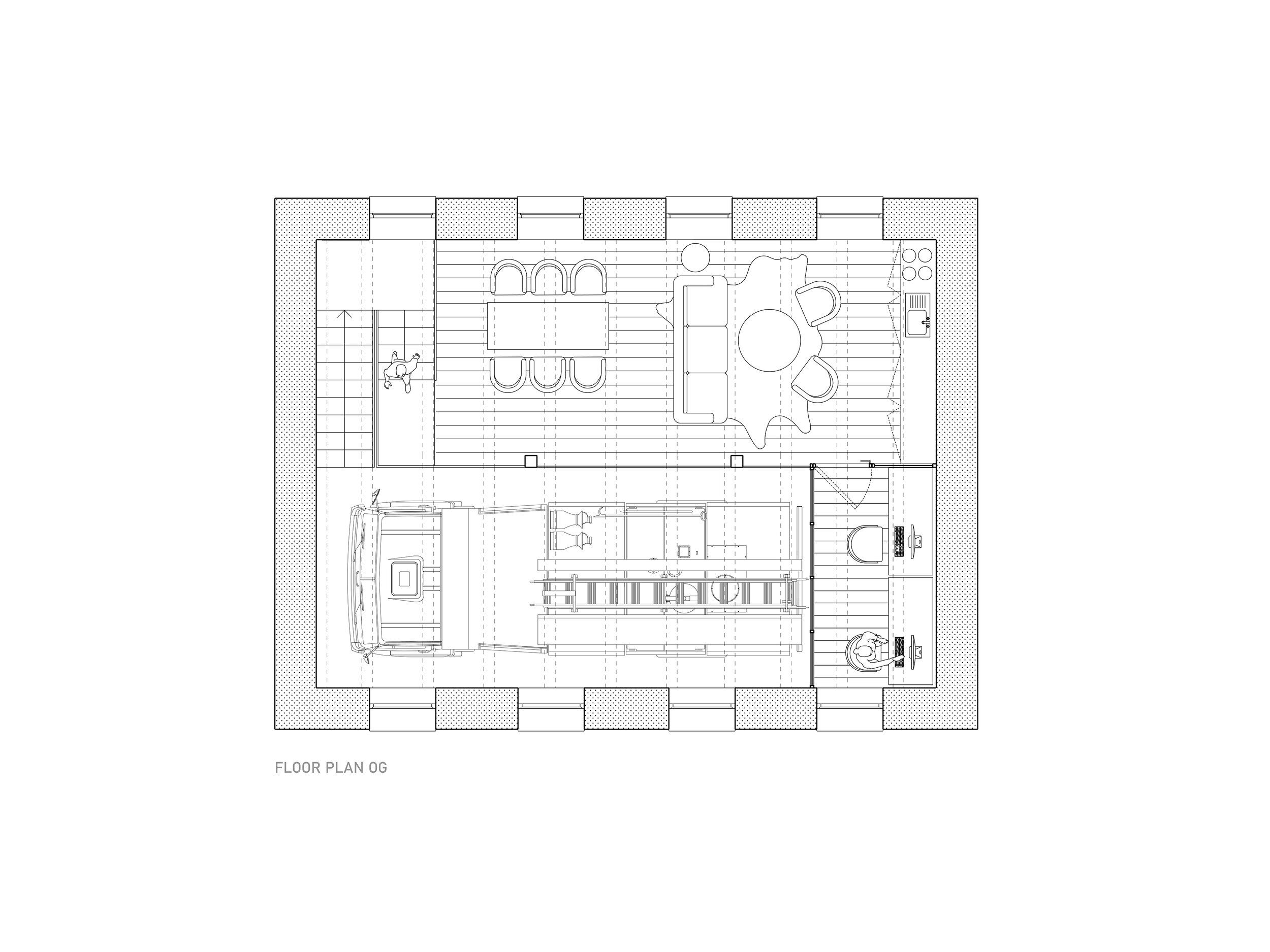
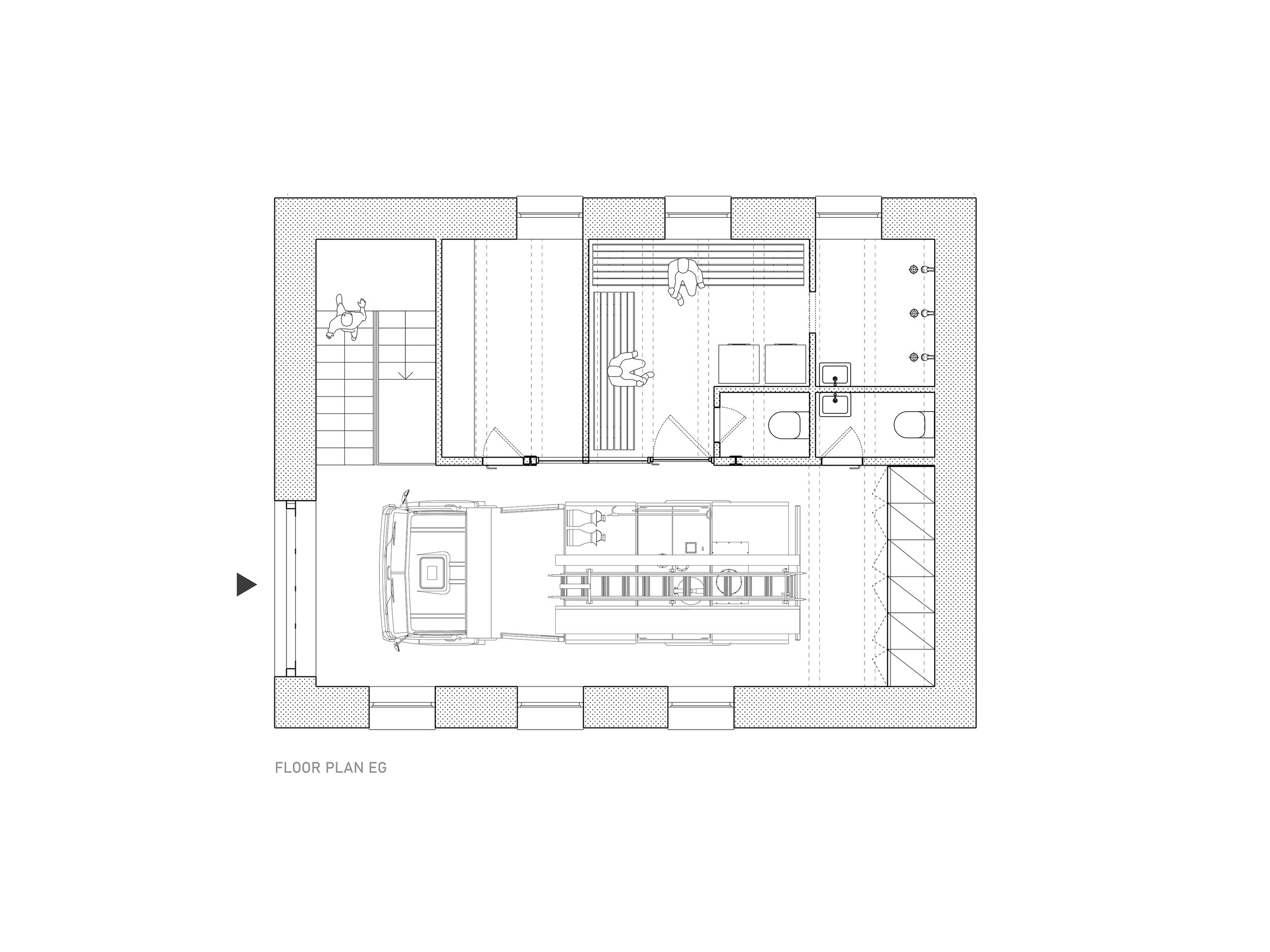
Rekonštrukcia schátralej sýpky z r. 1857 na požiarnu zbrojnicu pre miestny dobrovoľný hasičský zbor.

Vyčistený priestor, vzdušnosť, materialita, komunita.